当前位置:首页 > 试压泵知识 > 1.6MPa后电动试压泵4D-SY型两个低压缸停止工作
分享至:
联系我们contact us
公司总机028-82448381 四川思凯达机械设备有限公司

公司传真:028-65292429

技术支持电话:18980419018

成都公司1:028-82448381

成都公司2:028-65292429

河北公司:18932820608

山东公司:15615455736

山西公司:18932820608

江苏公司:13814350816

邮箱:377936883@qq.com

试压泵、电动试压泵及气动试压泵

计算机控制试压泵、试压泵曲线记录仪

试压泵控制系统咨询:18980419018

试压泵技术电话:18980419018

地址:成都高新区永丰路24号

1.6MPa后电动试压泵4D-SY型两个低压缸停止工作

发布日期:2023-09-08  点击量:

1.6MPa后电动试压泵4D-SY型两个低压缸停止工作

     4D-SY型(6.3—80MPa)电动试压泵系列按水压试验要求而特殊设计,在试压的初始阶段能迅速充液和升压,以缩短试验时间,具有较大的流量,当压力超过 1.6MPa(此压力可以调低)后,为使试压过程能较平稳而缓慢地进行,则流量自动减小,所以本泵在高、低压时具有两种流量,并能自动变换,凡在额定排出压力以下,可进行任意压力的水压试验。


一、概  述

4D-SY型(6.3—80MPa)电动试压泵是原机械工业部通用机械研究所试压泵联合设计组设计的最新系列产品,它具备了旧式产品的“三化”程度高、使用寿命长、性能稳定、移动灵活、重量轻等特点,并在此基础上增加了传动装置和十字转换,使本系列产品的综合技术指标全面达到标准要求,各种性能更加稳定可靠,使用更加安全方便,同时达到了节能省电的效果。在产品结构方面选用了封闭式水箱,降低了整机高度,使外形更加紧凑美观。


二、用  途

   4D-SY型(6.3—80MPa)电动试压泵主要适用于各类压力容器、氧气瓶、管道、阀门、蒸气锅炉等作水压试验,予应力加工新工艺和试验室中获得液体高压源的设备。

该产品系按5°—60℃的清水,乳化液和粘度不大于45mm2/s的油品为工作介质而特意设计的,在试压的初始阶段能迅速充液和升压,以缩短试验时间,具有较大的流量,当压力超过1.6Mpa(此压力可以调低)后,为使试压过程更加平稳的进行,则流量自动减小。所以该产品在高、低压时具有两种流量,并能自动变换。凡在额定排出压力以下,可进行任意数值的压力试验,该产品的工作环境温度:5°—60℃。

三、技术参数

本系列试压泵共有七种型号,基本参数如表1:

表1

型号

额定排出压力MPa

流量L/h

高压柱塞直径mm

往复

次数

配套电机功率KW

外形尺寸

长×宽×高mm

重量kg

高压时

4D-SY/6.3

6.3

160

32

51

1.1

815×480×1055

215

4D-SY/10

10.

100

25

4D-SY/16

16.

63

20

4D-SY/25

25.

40

16

4D-SY/40

40.

30

14

1.5

840×480×1055

4D-SY/63

63.

22

12

4D-SY/80

80.

16

10

低压缸柱塞直径:45mm

低压缸工作压力:≤1.6MPa

缸数:4

柱塞行程40mm

每分钟往复次数:51

选用试压泵时,应根据所需的试验压力来选择泵的额定排出压力。亦应兼顾到流量要求。


四、主要结构和工作原理

一、产品结构及原理图

    该产品为卧式4缸对称配置的往复泵。由电动机、减速箱、传动箱、高、低压水缸、集水器、液控阀、安全阀及水箱等主要部件组成。工作原理及结构示意如图1所示。

整台泵装在水箱上,水箱下有四个滚轮,使泵能移动灵活。电动机与减速箱由两件半联轴器联接。减速箱系蜗杆、蜗轮传动,速比为2:55。蜗轮轴两端有互成180°的偏心轴,通过两侧传动箱内的滑动机构,将旋转运动转变为滑块、十字头的往复运动。十字头上所装的柱塞在水缸内做往复运动,实现泵的交替吸入和排出过程。

在柱塞的往复作用下,4只水缸内的工作容积形成周期变化。当柱塞为吸入行程时,出水阀关闭,随水缸工作容积的增大,缸内形成真空,水箱内的工作介质在大气压力的作用下,通过滤网、吸水管、顶开进水阀进入缸体内。当柱塞为排出行程时,进水阀关闭,出水阀被迫开启,柱塞将工作介质通过出水阀输入集水器,输送到被试容器内,直至达到某一预定的试验压力,实现试压的目的。

集水器:集水器是泵的控制枢纽,起控制、测量和保护作用。集水器设有止回阀、截止阀、安全阀、放水阀及连接输出接管的工作接头,其上装有压力表。

止回阀:止回阀是高、低压缸间的通断阀,可以避免低压水缸承受高压。

截止阀:截止阀是泵与被试容器的控制阀,当达到试压示值时,即应关闭此阀并停机,进行保压检查与检验。试压完毕后,打开截止阀及放水阀卸压,将工作介质放回水箱内。

安全阀:安全阀是本泵液力端的过载保护装置。当泵的实际排出压力≤25MPa时,该阀的起跳压力为额定排出压力的1.1-1.15倍;当泵实际排出压力≥25MPa时,为额定压力的1.15-1.25倍时,即应释放工作介质,使泵不致过载,起到保护作用。

液控阀:液控阀的两端与两只低压缸相连,液控管与集水器的高压腔相通。液控阀关闭时,四只高、低压缸同时工作,而当排出压力>1.6MPa后,排出介质通过液控管使该阀开启,则两只低压缸互相连通,止回阀将它们与高压腔隔断,这时左、右低压缸不再输出介质,仅由高压缸工作,实现流量由大到小的自动切换,这样既能实现泵的流量自动变换,同时两只低压缸互通,也不再消耗能量,还可避免因泵过载而损坏机件。

      注意:液控阀动作压力不能高于1.6Mpa。出厂时已调试好,用户不需调整。

压力表:集水器上装有压力表,当被试容器达到试验压力,应立即停机并关闭截止阀,此时压力表仍指示试验压力。压力表的数值范围应相当于泵额定压力的1.2-1.5倍。


























五、使用方法

1、开箱后的安装

(1)安装滚轮。将四只滚轮套装在轮轴上(垫圈20在滚轮两侧),穿好开口销。

(2)安装安全阀。拧去集水器上包装的螺塞,将安五、使用方法

    1、开箱后的安装

    (1)安装滚轮。将四只滚轮套装在轮轴上(垫圈20在滚轮两侧),穿好开口销。

(2)安装安全阀。拧去集水器上包装的螺塞,将安全阀装在集水器的安全阀接头M14×1.5—5H孔内(注意加铜垫圈12)

(3)安装压力表。压力表拧入旁边的压力表接头螺母,使表面朝向便于观察的方向。

    2、使用方法

    (1)使用前的准备工作:

    ①减速箱内加足润滑油,使油面达到油标上限值或稍低位置。润滑油为黑色齿轮油(SYB1103-62S)。

②两侧传动箱经加油标牌注入30号机械油(GB443-89),油面应略高于十字头下部导轨面,长期连续使用应注意补充。

③检查各紧固螺栓有无松动现象。

④水箱内加满洁净的工作介质,并应注意过滤网不得露出水面。

⑤被试容器应预先充满工作介质。

    ⑥将被试容器管路与集水器的工作接头连接好。

    (2)使用中应注意事项:

①减速箱中油温最高不应超过80℃。

②工作中如发现泵或其他部分有明显渗漏现象,应及时排除。

③安全阀不能当液控阀使用。

④在对低压容器(Pa≤ 1.6MPa)进行试压时,可将液控阀的动作压力适当调低,即拧松液控安全阀处的锁紧螺母,再适当拧松调压螺塞,调整液控阀时,宜取下高压缸进水管,堵住泵出口或接上容器,反复开启放水阀,即可准确调至所需压力,确定后锁紧螺母。

⑤泵工作时,液控阀回水管在1.6Mpa以下时随压力升高回水增大,超过1.6MPa时回水量减少。若压力升高后,回水量继续增加,应停机调整检修液控阀,使其工作正常。(也可能是出水阀与止回阀泄漏引起)

⑥如被试容器的容积很小,升压太快时,可将多个被试容器联接在一起试压,或微开放水阀,降低升压速度,或将液控阀的动作压力调低仅由两只高压缸工作。

⑦在升压过程中,若压力表指针摆动太大,说明用户的被试容器容积太小,此时最好在系统中接上一个有足够容量的压力容器(应符合相关国家标准)或其它相应的蓄能装置。

⑧若被试容器容积较大,可先连续运转升压,待接近试验压力时再点动升压。操作过程中应密切注意系统压力,避免意外超压。

    ⑨若不慎意外超压,可打开放水阀,卸除部分压力后重新升压。

(3)使用操作步骤

①  开启放水阀。

②启动电机,在常压下运转5分钟,检查泵的运转是否正常。若无异常响声及阻滞现象,吸、排情况正常且泵排出的工作介质无明显波动,即可关闭放水阀,启动本泵试压。

③当泵的排出压力达到或接近要求压力值时,即应停机,关闭截止阀后,打开放水阀,使泵与被测试容器隔断,被测试容器处于保压状态。如被试容器不需保压,停机即可,不需关闭截止阀。

④试压完毕后,打开截止阀及放水阀卸压,将工作介质放回水箱内。

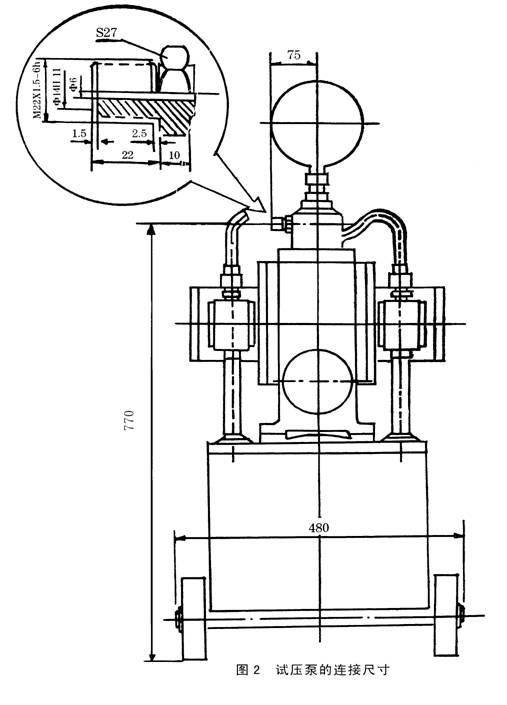
    (4)试压泵的联接尺寸:

在泵的集水器中心线上,离地高度770毫米处,装有工作接头,有关尺寸如图2,请用户按此尺寸安装联接管路。


























六、一般故障及排除方法

试压中如发现故障,应首先排除泵以外(被试容器

、管路系统等泄露)故障,再检查泵的故障并排除。

    4D-SY电动试压泵高压不上水简易维修办法





















故障现象

原因

排除方法

泵的压力上升太慢或不上升

1、放水阀未关严。

2、过滤网堵塞或接头渗漏。

3、柱塞密封圈松动或损坏。

4、进、出水阀搁死。

5、进、出水阀不密封。

6、吸水管漏气。

1、关紧或重新配研。

2、清洗或去除污物拧紧接头。

3、调整压紧螺套或更换密封圈。

4、拆下检查、清洗或重新研磨。

5、重新研磨或更换。

6、旋紧吸水管。

泵的压力上升不均匀

1、有一缸进、出水阀搁死。

2、有一缸进、出水阀密封不良。

3、有一缸密封圈松动或损坏。

1、根据柱塞运动方向,表针摆动情况及响声判定故障缸,拆下清理或配研。

2、同上法判定故障缸。将阀拆下重新研磨或更换。

3、同上法及观察缸座泄水孔漏水情况判定故障缸,调整压紧螺套或更换密封圈。

泵的保压时间太短或达不到额定排出压力

1、集水器上截止阀渗漏。

2、集水器上放水阀渗漏。

3、安全阀渗漏。

4、集水器内止回阀或各水缸的出水阀渗漏。

5、接头处渗漏。

1、关紧截止阀或重新配研。

2、关紧放水阀或重新配研。

3、调整弹簧松紧或清洗密封面或重新研磨阀线。

4、重新研磨或更换阀与阀座。

5、拧紧接头或更换密封垫圈。

减速箱温度太高

1、润滑油粘度低或太脏。

2、轴承装配太紧。

3、蜗轮副啮合间隙太小。

4、安全阀动作不灵或泵负荷太重。

5、电动机同心度不好。

1、调整润滑油数量或更换润滑油。

2、调整轴向间隙。

3、检查接触面斑痕,重新装配和调整蜗轮位置。

4、禁止超载运行或检修安全阀。

5、重新安装,调整电机轴线位置。

电动机负荷超载

1、泵超负荷运行。

2、各处润滑不良。

3、电源电压太低

4、柱塞密封圈太紧。

1、避免超负荷运行。

2、补充或更换润滑油。

3、提高电源电压。

4、适当放松压紧螺套。


七、维护和保养

1、泵外表、减速箱和传动箱内的润滑油及水箱中的试压介质必须保护清洁,不允许有污物和其他杂物。

2、第一次用的润滑油工作56小时后应当更换。以后每工作500小时更换一次。

3、长期停用的泵,其内部应进行防锈处理。先把试压介质排净,并用洁净柴油过油后存放。外露零件外表应涂防锈油。

4、经常检查泵的蜗轮蜗杆的轴向间隙:蜗杆为0.04-0.07mm,蜗轮为0.05-0.10mm。如不符合此值,需调整通盖、闷盖纸垫或侧盖纸垫。

5、在环境温度0℃以下使用,工作介质为水时应添加防冻剂。建议采用变性酒精为防冻剂。配比见下表。


环境温度℃

90°变性酒精%

清水%

0—-10

33

67

-10—-20

45

55

-20—-30

54

46

-30—-40

70

30


标签: