

3D-SY5.5型电动试压泵

一、概 述
我公司在高压大流量试压泵基础上,经改进而扩展设计的3D-S40系列电动试压泵,不但具有结构紧凑、安全可靠、流量大、效率高、高压力覆盖范围宽等特点,而且适用范围广、配套性强、操作简单、移动方便。该机可采用电机或柴油机等作为动力源,适合室内外或野外无电源的地方作业。本产品性能和质量参照JB/T9089-1999《试压泵》或JB/T6909-93《超高压泵》执行。

二、用 途
本机可用于各类压力容器、锅炉、管道、阀门等一切需作压力爆破试验和强度试验的场所,作爆破、试压用;也可用于油田井口,注水用。试验压力均可由常压升至额定排出压力。配上微机控制系统,可实现全自动化远程操作。本机的使用介质一般为常温清水,也可使用乳化液、防锈水及粘度与水相近的中性油品
三、技术参数
型 号 | 3D-SY300/100 | 3D-SY220/130 | 3D-SY150/160 |
额定压力(MPa) | 100 | 130 | 160 |
额定流量(L/h) | 300 | 220 | 150 |
柱塞直径(mm) | Ф12 | Ф10 | Ф10 |
柱塞行程(mm) | 40 | ||
往复次数(min-1) | 395 | ||
电机转速(rpm) | 960 | ||
电机功率(KW) | 5.5 | ||
四、主要结构和工作原理
本产品由高压往复泵、止回泄压阀、安全阀、水箱、电机等组成。
本机工作原理为,电动机通过皮带轮带动高压往复泵工作,常温清水由进水管进入往复泵,经进出水阀、节流调压阀、单向阀、形成由高压软管输送到被试器件的高压水。
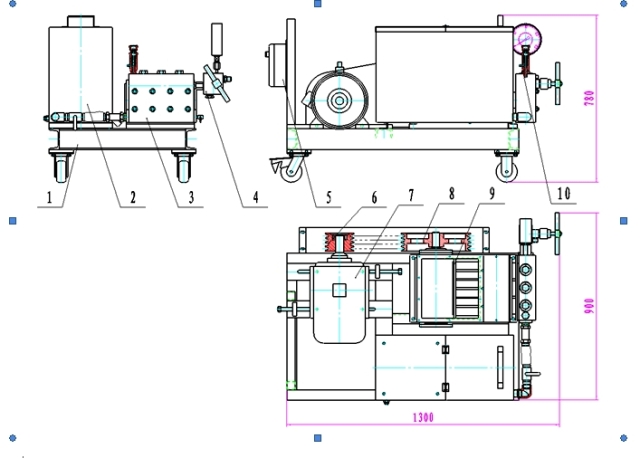
1.结构简图

1.机架 2.水箱部分 3.液力端 4.止回卸压阀 5.电机启动器
6.电机皮带轮 7.电机 8.大皮带轮 9 .动力端 10.安全阀
试压泵结构简图

2.高压往复泵:本泵为卧式三柱塞泵,由电动机驱动,分为动力端和液力端。
(1)动力端:由皮带轮、曲轴、连杆等组成。电机通过皮带轮传动并减速,带动曲轴旋转,由曲轴连杆机构将旋转运动转换为直线往复运动,带动柱塞往复运动。
(2)液力端:由柱塞副、缸体、泵头、进出水阀组、安全阀等组成。连杆带动柱塞往复运动,使缸体内容积周期变化,当柱塞为吸入行程时,出水阀关闭,工作介质在大气压下顶开进水阀进入缸体内;在排出行程时,进水阀关闭,柱塞将工作介质通过出水阀并经泵头排出。该过程周期性重复进行,从而完成泵将工作介质吸入并排出的功能。
3.止回泄压阀用于自动截断保压及卸除系统压力。
保压试验结束后,打开泄压阀手轮,即可卸除系统压力。在升压过程中,若误操作时系统压力高于应设定值,可适当打开泄压阀手轮,卸除部分压力后重新升压。
4.水箱:盛水容器。用户自备一吋胶管,将水源与水箱左上部进水接头牢固联接。工作时放入水流量应不低于泵额定流量。工作时注意观察水箱水位,水位较低时用户应及时补充水源( 开大水源或清除箱内滤网堵塞物)。为了保证水质清洁,箱盖不得随意打开。
附注:
1.泵头装有压力表,升压过程及保压过程中均显示试压管路压力。
2.泵头装有安全阀,安全阀用于系统超压保护。安全阀出厂时起跳压力已调好,用户不得随意调节,也不能当溢流阀使用。
五、安装及使用方法
1、安装
安装好电机启动器及电源线路;安装好止回泄压阀(该件出厂时由主机拆下单独包装)。连接处应用紫铜垫进行密封;
安装好压力表;
用高压软管将试压管路与止回泄压阀进行连接,连接处应用紫铜垫进行密封;
将水箱进水口与进水管路连接好。
2、使用方法
使用前的准备工作
a.机壳内加足润滑油,使油面达到油位指示线位置,润滑油为N46号机械油(或40#机械油)。
b.检查各螺纹连接处有无松动。
c.检查电机及启动器绝缘部分是否符合电器规程要求。为安全用电,整机必须可靠接地。
d.水箱内加入足够的水。
操作过程
a.打开泄压阀手轮。
b.启动电机,在常压下运转5分钟,检查泵的运转是否正常。若无异常声响,且泵的排出介质无明显波动,此时可进行升压操作。
c.停机,关闭泄压阀手轮,点动电机升压达到试验压力并停机,此时,试压管路处于自动保压状态。
d.试压结束后,打开泄压阀手轮,卸除试压管路及泵内的压力。
使用过程中的注意事项
a.若被试压件容积较大,可先连续运转升压,待接近试验压力时再点动升压。操作过程中应密切注意系统压力,避免意外超压。
b.若不慎意外超压,可打开泄压阀手轮,卸除部分压力后重新升压。
c.试验压力不得超过泵的额定工作压力。
六、安全注意事项
1、本机安全阀出厂时已调好,用户不得随意调整。
2、负荷运转时,瞬时最大压力不得超过泵的额定工作压力。
3、高压泵和管路应有防护装备,操作中应特别注意管端接头破坏后伤人,严禁非操作人员进入试压场地。
4、严禁在高压下装拆主机、附件和管路等,处理故障检修时,必须停机后进行。
七、一般故障及排出方法
故 障 现 象 | 产 生 原 因 | 排 出 方 法 |
1.泵不能启动 | 电源一相或两相断电 | 检查电源供电情况, 保险丝及线路 |
2.流量不足及压力波动太大 | 1.吸入管有堵塞现象 2.吸入管漏气 3.某一缸或两缸工作不正常 4.水箱供水不足
| 1.清除吸入管滤网堵塞物 2.修理漏气部位 3.检查清洗, 研磨进水阀或出水阀 4.打开供水阀加大供水量,清洗水箱内过滤网 |
3.柱塞侧箱内水面上升过快 | 密封磨损 | 打开机架旁边的放水阀,放去沉积介质, 重新调整密封压紧螺塞,经多次调整无效后,如能满足升压要求,可经常放去泄漏介质,至流量不能满足要求后,更换密封填料,必要时更换柱塞及缸体内铜密封件 |
4.压力达不到要求 | 1.进出水阀失灵 2.安全阀泄漏 3.排出管路泄漏 4.止回阀失灵
| 1.研磨或更换新的阀座和阀芯 2.研磨或更换阀芯、阀座 3.检修泄漏处 4. 研磨或更换阀芯、阀座 |
5.泵运转有撞击声 | 1.润滑油不足 2.曲轴瓦, 十字头衬套,十字头销等有磨损或间隙过大 3.轴承压盖调整不合适 4.轴承精度降低或损坏 5.一缸未进水 | 1.添加同种润滑油或更换合适的润滑油. 2.检修或更换 3.调整轴承压盖间隙 4.更换新轴承 5.使其进水正常
|
6.柱塞和高压缸体过度发热 | 1.填料压得太紧 2.介质未进入泵缸 3.柱塞摩擦缸体零件 4.柱塞未润滑 | 1.适当调整压紧螺塞或更换新填料 2.检查进水阀、出水阀及进水管路,使进水正常 3.重新调校安装高压缸体 4.使油杯滴油正常 |
7.曲轴润滑系统无油压 | 1.电动机转向与箭头所示方向相反 2.吸油管路漏气 3.减速箱内机械油偏少,油路出现气泡 4.齿轮泵损坏或泵轴键脱落 | 1.改变电源接线 2.检查进油管活动接头等,排除漏气因素 3.补充足机械油 4.检修或跟换齿轮油泵 |
八、维护和保养
1、曲轴的润滑油及试压介质均应保持清洁,避免杂质污染。
2、新机第一次使用的润滑油工作40小时后应进行更换,第二次更换时间为80小时,以后每200小时左右更换一次,同时应清洗油池。
3、使用过程中应随时检查各联接处紧固件是否松动,如有松动应立即紧固。
4、在冬季结冰地区使用,用后应将泵内及内存水排净。
5、该机长期不用时,应进行防锈处理,先将余水排净,再吸灌一次防锈油或防锈水,未涂漆的零件表面应涂机油防锈。
6、泵工作500—600小时,应检查主要零部件,如连杆、活塞、密封、阀组、柱塞等,必要时更换新的零部件。
九、配件表
序号 | 代 号 | 名称及规格 | 单位 | 数量 | 备 注 |
1 | 轴瓦 | 付 | 3 | ||
2 | 油封40×16 | 件 | 1 | ||
3 | O型密封圈10×1.9 | 件 | 1 | ||
4 | O型密封圈14×2.4 | 件 | 3 | ||
5 | O型密封圈20×2.4 | 件 | 3 | ||
6 | O型密封圈22×2.4 | 件 | 4 | ||
7 | O型密封圈30×3.1 | 件 | 3 | ||
8 | O型密封圈35×3.1 | 件 | 2 | ||
9 | O型密封圈37×3.1 | 件 | 3 | ||
10 | O型密封圈40×3.1 | 件 | 3 | ||
11 | O型密封圈45×3.5 | 件 | 3 | ||
12 | O型密封圈65×3.5 | 件 | 3 | ||
13 | 进水阀 | 套 | 3 | ||
14 | 出水阀 | 套 | 3 | ||
15 | 填料密封圈 | 件 | 12 | ||
16 | 瓶阀 | 件 | 1 | ||
17 | 止回阀 | 套 | 1 | ||
18 | 铜垫圈Φ12×Φ6 | 件 | 2 | ||
19 | 铜垫圈Φ14×Φ8 | 件 | 2 | ||
20 | 阀提手 | 件 | 1 | ||
21 | 不锈钢弹簧 | 件 | 4 | ||
22 | 安全阀大簧 | 件 | 1 |
标签: 电动试压泵3DSY5.5KW厂家、 电动试压泵3DSY5.5KW价格、